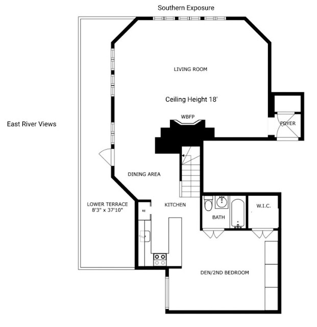
Behold Penthouse 7 in No. 5, once again on the market. It is a two bedroom, two bath affair, spread out over three levels, the top being a roof terrace ‒ with another terrace on the first floor. This is also the penthouse that movie star Charlton Heston rented in the 1950s as his New York City base, and where he gave his celebrated interview with Edward R. Murrow on Person to Person.
The price is listed by its real estate agent, Douglas Elliman, at $4,795,000.






This is in addition to the God Father 3 Penthouse?
ReplyDeleteSam Champion is looking to buy a PH with Terrace.
ReplyDeletehttps://www.yahoo.com/lifestyle/sam-champion-moving-nyc-apartment-124643080.html